سرویس سبک زندگی - در شهر پر هیاهوی توکیو، جایی که هر متر مربع ارزشمند است، کومینورو دیزاین با طراحی خانه ای سه طبقه در زمینی به مساحت تنها 30 متر مربع در ناکانو سیتی، راه حلی مبتکرانه ارائه داده است. ...
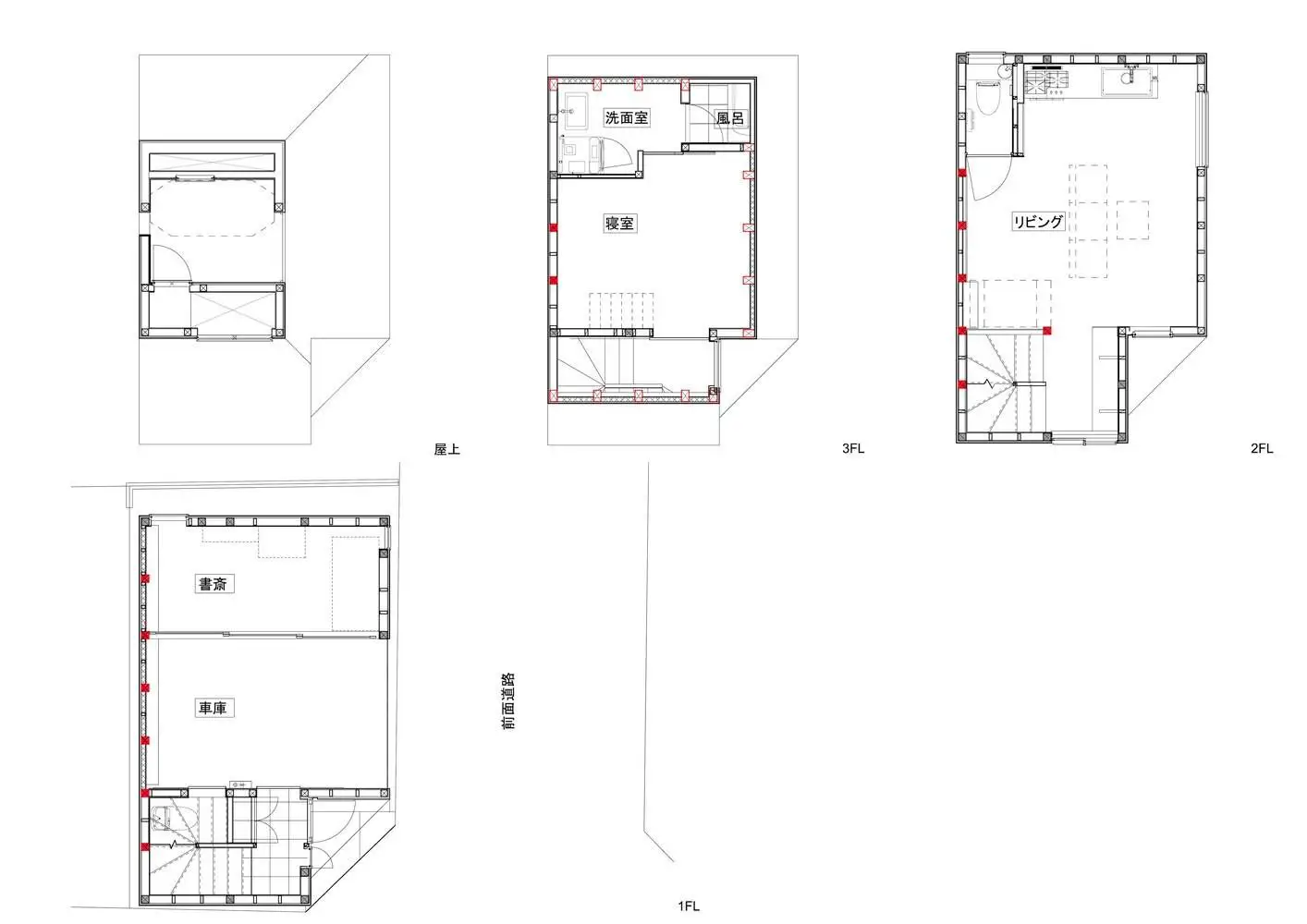
به گزارش سرویس سبک زندگی جیرجیرک به نقل از فرادید - خانه کوچک (Small House) طراحی شده توسط کومینورو دیزاین (KOMINORU Design) راه حلی ظریف در شهری ارائه می دهد که فضا در آن بسیار ارزشمند است. این خانه چوبی سه طبقه که تنها ۳۰ متر مربع را در ناکانو سیتی، توکیو اشغال کرده است، نشان می دهد که چگونه طراحی متفکرانه می تواند فضایی کوچک را به یک فضای زندگی راحت تبدیل کند.
تیم کومینورو دیزاین مستقر در توکیو با بهره گیری از مقررات ساختمانی و مزایای منحصر به فرد مکان ساخت، به نسبت پوشش ساختمانی ۸۰ درصدی دست یافت. طبقه بندی نیمه ضد حریق نیز امکان گسترش عمودی را فراهم کرد و در نتیجه خانه ای باز و دلباز ایجاد شد. معماران از طریق برنامه ریزی دقیق و حس قوی نور و حجم، خانه ای خلق کرده اند که با وجود اندازه کوچک، هم کارآمد و هم به طرز چشمگیری جادار است.
خانه کوچک؛ اقامتگاهی منحصر به فرد در توکیو
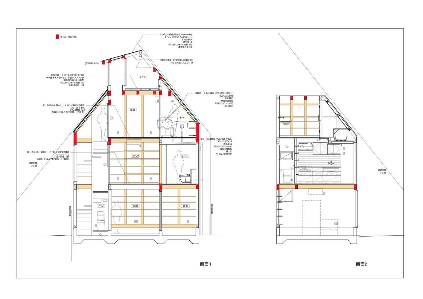
خانه کوچک تعادل ظریفی بین بیان ساختاری و ایمنی در برابر آتش ایجاد می کند، چالشی که اغلب در محیط های شهری متراکم با آن روبرو هستیم. معماران به جای پنهان کردن چارچوب چوبی خانه به دلیل رعایت مقررات، استفاده از ستون ها و تیرهای مستحکم به پهنای ۱۲۰ میلی متر را در نظر گرفتند. این انتخاب دقیق به بخش هایی از ساختار چوبی اجازه می دهد تا حدی نمایان بمانند و ضمن رعایت مقررات سختگیرانه ایمنی در برابر آتش، همچنان از ماده طبیعی استفاده شود.
سقف ها به گونه ای طراحی شده اند که روی این تیرهای نمایان قرار بگیرند و به طور نامحسوس ارتفاع هر طبقه را افزایش دهند. این جزئیات متفکرانه حس باز بودن و عمودی بودن بیشتری ایجاد می کند و به فضای داخلی احساس روشنایی و دلبازی می بخشد که اندازه کوچک خانه را پنهان می کند. این یک تعامل پیچیده از مهارت سنتی و دقت فنی است.
تیم طراحی همچنین به طرز ماهرانه ای از محدودیت های منحصر به فرد مکان ساختمان برای به حداکثر رساندن هم کاربرد و هم راحتی استفاده کرد. آنها با استفاده از صفحه نورگیر شیب دار در ضلع جنوبی، یک تراس جمع و جور روی پشت بام ایجاد کردند - خلوتگاهی بیرونی که بدون درک دقیق قوانین منطقه بندی محلی امکان پذیر نبود. در ضلع شمالی، شیبی تندتر یک چالش فضایی ایجاد کرد. در اینجا، معماران یک محدودیت بالقوه را به یک دارایی کاربردی تبدیل کردند و از فضای پایین تر و زاویه دار زیر خط سقف برای انبار استفاده کردند.
حمام، فضایی که در طول روز کمتر مورد استفاده قرار می گیرد، به طرز هوشمندانه ای در زیر این بخش شیب دار قرار گرفته است. یک وان سفارشی به طور کامل در فضای زاویه دار ادغام شده است و هر سانتیمتر از فضای موجود را بهینه می کند و در عین حال یک فضای داخلی ساده و منسجم را حفظ می کند. نتیجه، خانه ای است که محدودیت ها را به فرصت تبدیل می کند و جذابیت زیبایی شناختی را با راه حل های عملی زندگی به طور یکپارچه ترکیب می کند.
کومینورو دیزاین نمای بلند و باریک خانه کوچک خود را به عنوان یک سیستم آب و هوایی غیرفعال و کارآمد تفسیر می کند. یک پنجره تهویه در پشت بام قرار دارد که هوا را از طریق هسته عمودی خانه به سمت بالا می کشد و تا حد زیادی شبیه یک برج بادی مدرن عمل می کند. این امر امکان جریان طبیعی هوا در سراسر فضای داخلی را فراهم می کند و نیاز به سرمایش مکانیکی را به حداقل رسانده و یک محیط زندگی راحت را در تمام طول سال ایجاد می کند.
این طراحی همچنین با اتخاذ رویکردی عمودی در محوطه سازی، حضور فضای سبز در یک محیط شهری متراکم را بازنگری می کند. معماران با فضای محدود زمین، کاشت گیاهان را در بالای لبه بام و باغ را در طبقه دوم معرفی کردند. این راه حل شاخه ها و برگ های درختان را مستقیماً در معرض دید قرار می دهد و ارتباطی با طبیعت را برای ساکنان فراهم می کند که به طور معمول در خانه های ویلایی با باغ های سنتی یافت می شود.
منبع: عصر ایران














